Двухэтажный дом на берегу Камы с панорамными окнами,
4-метровыми потолками и отдельным банным комплексом.
Интерьер в американском стиле как из любимых сериалов,
где герои ценят комфорт и особую атмосферу
Двухэтажный дом Камы с панорамными окнами, 4-метровыми потолками и
отдельным банным комплексом.
Интерьер в американском стиле как из любимых сериалов, где герои ценят комфорт и особую атмосферу
нАБЕРЕЖНЫЕ ЧЕЛНЫ
700 КВ.М/2025г.
CASA RIVA
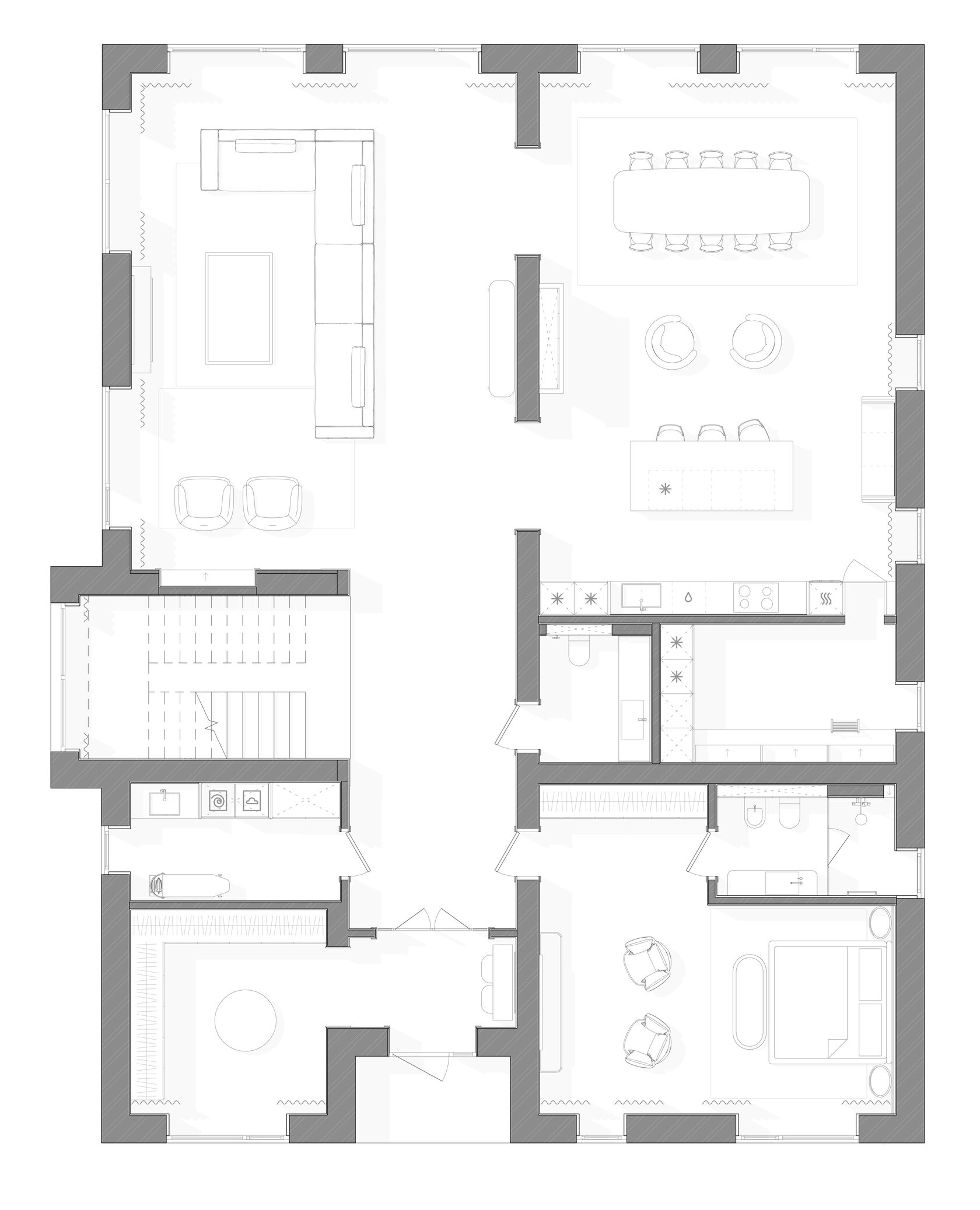
Большая гостиная с уютными креслами и 5-метровым диваном — для отдыха, 
отдельная кухня-столовая с 3-метровым обеденным столом — для теплых семейных ужинов.
Большая гостиная с уютными креслами и 5-метровым диваном — для отдыха, отдельная кухня-столовая 
с 3-метровым обеденным столом — для теплых семейных ужинов.
Просторные мастер-блоки (спальня + гардероб + ванная)
для всех членов семьи.
Просторные мастер-блоки (спальня + гардероб + ванная)
для всех членов семьи.
PLAN