Лаконичное и теплое пространство создавалось для молодой пары.
Эстетика простоты и незагроможденности делает этот интерьер
своего рода уютным оазисом, где можно отдохнуть от внешнего и подумать о важном.
Лаконичное и теплое пространство создавалось для молодой пары.
Эстетика простоты и незагроможденности делает этот интерьер своего рода уютным оазисом, где можно отдохнуть от внешнего
и подумать о важном.
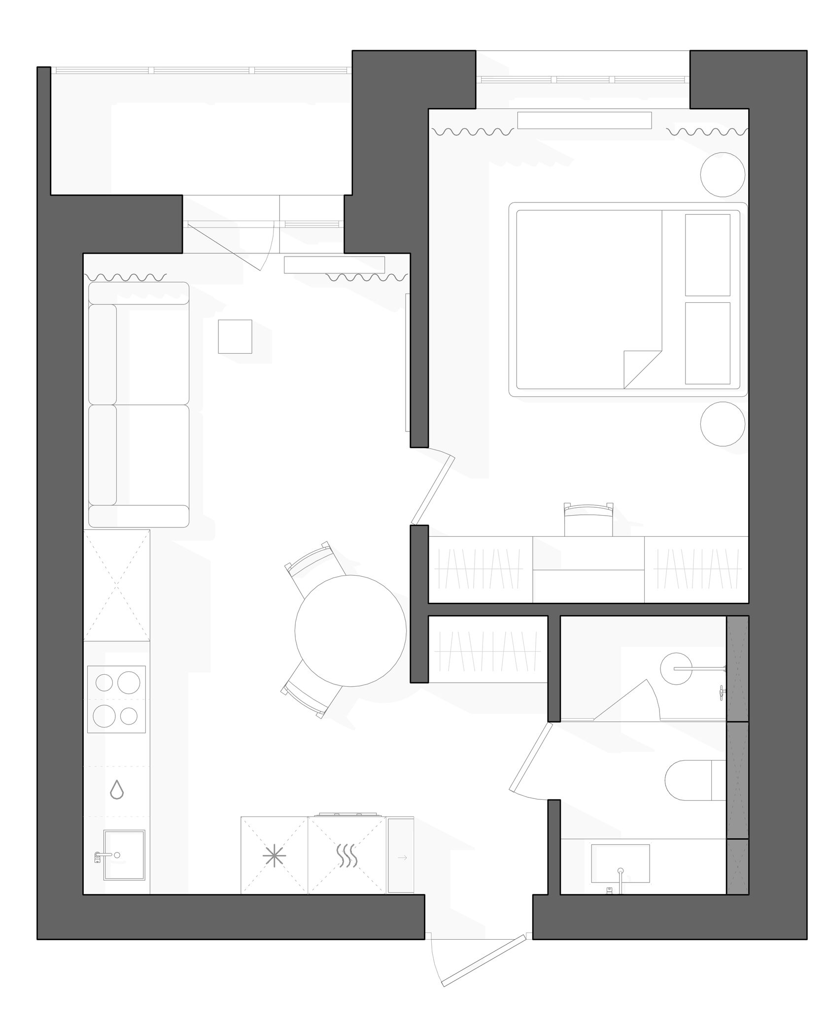
ВЕЛИКИЙ НОВГОРОД
40 КВ.М/2024г.
GIOIA
Визуальный комфорт с выверенными пропорциями,
где винные акценты "красной нитью" проходят через весь интерьер квартиры.
PLAN