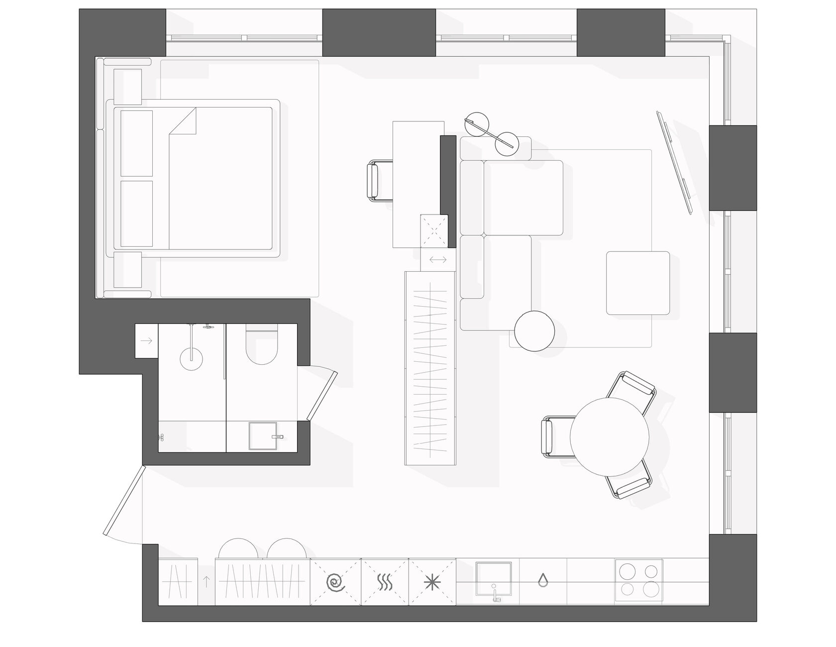
Мы отказались от лишних стен в пользу воздуха и естественного света.
Белую базу разбавили яркими смелыми оттенками винного и синего, которые ритмично перетекают из одной зоны в другую,
создавая единство пространство во всей квартире.
Мы отказались от лишних стен в пользу воздуха и естественного света.
Белую базу разбавили яркими смелыми оттенками винного и синего, которые ритмично перетекают из одной зоны в другую, создавая единство пространство во всей квартире.
КАЗАНЬ, жк САВИН ФЭМИЛИ
60 КВ.М/2024г.
QUADRO
Особенность спального пространства в том, что в него можно попасть как с коридора, так и со стороны гостиной, как в знаменитой
нью-йоркской квартире Кэрри Брэдшоу.
Особенность спального пространства в том, что в него можно попасть как с коридора, так и со стороны гостиной, как в знаменитой нью-йоркской квартире Кэрри Брэдшоу.
Рабочее место в этом проекте притягивает взгляд своей геометрией и отделкой.
Мы использовали яркий акцентный камень и металл,
что перекликается с прикроватными тумбами в спальне.
Рабочее место в этом проекте притягивает взгляд своей геометрией и отделкой.
Мы использовали яркий акцентный камень и металл,
что перекликается с прикроватными тумбами в спальне.
PLAN